扫一扫,关注我们
微信公众号:15873222055
实用新型名称:一种可调整角度的太阳能光伏固定支架的太阳能光伏系统申请号/专利号:2022213137816申请人:湖北科达智慧能源科技有限公司摘要:本发明公开了一种可调整角度的太阳能光 伏固定支架的太阳能光伏系统,包括光伏固定框 体和光伏发电板,所述光伏发电板下侧设有支撑 柱,所述支撑柱顶部设有与所述光伏固定框体配
服务承诺: 一年保修 产品终身服务 免收服务费 服务随叫随到
产品价格:1200/套
销售热线:18671317559
实用新型名称:一种可调整角度的太阳能光伏固定支架的太阳能光伏系统
申请号/专利号:CN202221313781.6
申请人:湖北科达智慧能源科技有限公司
摘要:
本发明公开了一种可调整角度的太阳能光 伏固定支架的太阳能光伏系统,包括光伏固定框 体和光伏发电板,所述光伏发电板下侧设有支撑 柱,所述支撑柱顶部设有与所述光伏固定框体配 合的球头万向连接件,所述支撑柱上设有设备平 台,所述设备平台通过旋转连接件与所述支撑柱 可旋转连接,所述设备平台上设有至少两个用于 驱动所述光伏固定框体绕所述球头万向连接件 翻转的调整机构,所述旋转连接件上设有用于驱 动所述旋转连接件绕所述支撑柱旋转的旋转驱 动机构,本实用新型使得光伏发电板调整角度更 广,可实现无死角调整,可保证光伏电池板始终 位于最佳倾斜角度,便于光伏发电板更好的接收 太阳光,提高了光伏电池板的发电效率。




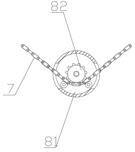
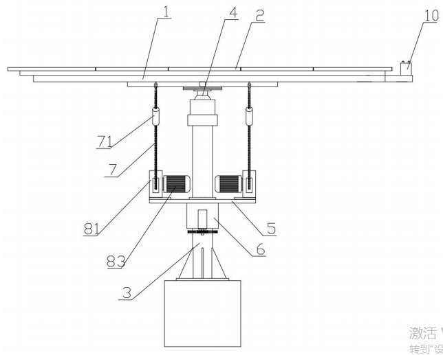
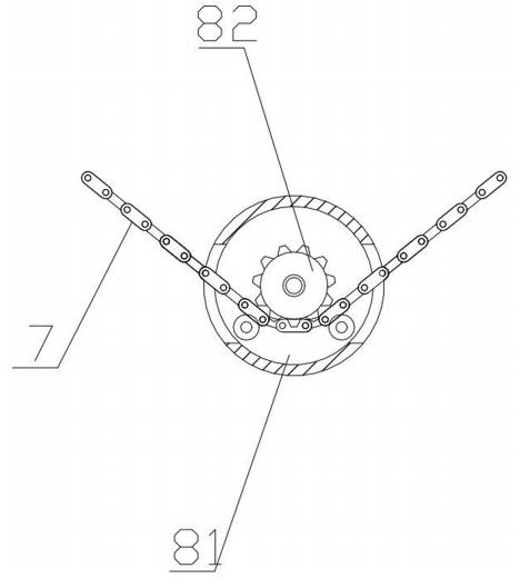
1 .一种可调整角度的太阳能光伏固定支架的太阳能光伏系统,包括光伏固定框体(1) 和若干铺设于所述光伏固定框体(1)上侧的光伏发电板(2),所述光伏发电板(2)下侧设有 支撑柱(3),其特征在于:所述支撑柱(3)竖直设于所述光伏固定框体(1)中心下侧,所述支 撑柱(3)顶部设有与所述光伏固定框体(1)配合的球头万向连接件(4),所述支撑柱(3)上设 有设备平台(5),所述设备平台(5)通过旋转连接件(6)与所述支撑柱(3)可旋转连接,所述 设备平台(5)上设有至少两个用于驱动所述光伏固定框体(1)绕所述球头万向连接件(4)翻 转的调整机构,所述调整机构包括调整链条(7),所述调整链条(7)两端分别与所述光伏固 定框体(1)前后两侧或左右两侧固定连接,所述设备平台(5)上设有用于固定并驱动所述调 整链条(7)前进或后退的链条驱动机构(8),所述旋转连接件(6)上设有用于驱动所述旋转 连接件(6)绕所述支撑柱(3)旋转的旋转驱动机构(9)。 2.如权利要求1所述的一种可调整角度的太阳能光伏固定支架的太阳能光伏系统,其 特征在于:所述旋转驱动机构(9)包括固定设于所述旋转连接件(6)侧壁的旋转驱动电机 (91)和设于所述旋转驱动电机(91)电机转轴上的第一驱动齿轮(92),所述支撑柱(3)外壁 设有与所述第一驱动齿轮(92)啮合的齿盘(93)。 3.如权利要求1所述的一种可调整角度的太阳能光伏固定支架的太阳能光伏系统,其 特征在于:所述链条驱动机构(8)包括壳体(81)和设于所述壳体(81)内的第二驱动齿轮 (82),所述第二驱动齿轮(82)与所述调整链条(7)啮合,所述壳体(81)上设有用于驱动所述 第二驱动齿轮(82)旋转的链条驱动电机(83)。 4.如权利要求1所述的一种可调整角度的太阳能光伏固定支架的太阳能光伏系统,其 特征在于:所述调整链条(7)两端靠近与所述光伏固定框体(1)连接处均设有拉式阻尼缓冲 器(71)。 5.如权利要求1所述的一种可调整角度的太阳能光伏固定支架的太阳能光伏系统,其 特征在于:还包括与所述链条驱动机构(8)、旋转驱动机构(9)控制连接的控制器,所述光伏 固定框体(1)上侧设有与所述光伏发电板(2)同向设置的光电式太阳光跟踪传感器(10),所 述光电式太阳光跟踪传感器(10)与所述控制器数据通信连接。 6.如权利要求1所述的一种可调整角度的太阳能光伏固定支架的太阳能光伏系统,其 特征在于:所述球头万向连接件(4)包括球头(41)和球壳(42),所述球头(41)上端设有与所 述光伏固定框体(1)固定连接的球杆(43),所述球壳(42)固定设于所述支撑柱(3)顶部,所 述球壳(42)内设有与所述球头(41)适配的球型腔。 7 .如权利要求6所述的一种可调整角度的太阳能光伏固定支架的太阳能光伏系统,其 特征在于:所述光伏固定框体(1)与所述球头万向连接件(4)之间还设有水平设置的端面轴 承(11)。
技术领域 [0001] 本实用新型涉及光伏系统的技术领域,特别是可调整角度的太阳能光伏固定支架 的技术领域。
背景技术 [0002] 光伏是太阳能光伏发电系统的简称,是一种利用太阳电池半导体材料的光伏效 应,将太阳光辐射能直接转换为电能的一种新型发电系统,有独立运行和并网运行两种方 式。光伏组件发电过程中有多种因素能够影响光伏板发电量,其中光伏组件吸收太阳光辐 照量的多少为最大的影响因素。光伏组件通过光伏支架支承在地面或建筑物屋顶,光伏支 架的结构决定了光伏组件的安装角度及工作过程中的状态,光伏组件的安装角度与工作状 态决定了光伏组件吸收太阳光辐照量的多少,光伏组件的受光面与太阳光垂直时能吸收到 的太阳光辐照量最大,所能转换出的电能也就最多。光伏组件在工作过程中通常可以有以 确定的安装角度静止不动或随太阳位置改变安装角度两种工作状态,显然光伏组件在工作 过程中能够随太阳位置而改变安装角度以尽量使光伏组件受光面与太阳光垂直这一工作 状态能实现较高的发电效率。 [0003] 如公开号为CN212205107U的中国实用新型专利就提出了一种高发电效率光伏支 架,包括光伏组件、组件支架、前立柱及后立柱,所述前立柱上端与组件支架铰连,所述后立 柱包括立柱筒体,在立柱筒体下部固连有螺杆支座,在螺杆支座上转动支承有升降螺杆,在 升降螺杆上旋接有升降座,升降座与立柱筒体内壁滑动配合,在升降座上设有连杆支承部, 连杆支承部穿过立柱筒体的筒壁伸出于立柱筒体之外,在连杆支承部上铰连有连杆,连杆 的另一端与组件支架铰连;所述前立柱与后立柱分别排成一列,各后立柱中的升降螺杆与 驱动装置传动连接。我们知道太阳直射点一直是在南北回归线之间往复的,往复过程中导 致各季节太阳光直射位置是不同的,以上专利结构虽然能一定程度上调整光伏组件的角 度,但其调整角度有限,只能绕前立柱与组件支架铰接位置单向调整,调整角度极为有限, 显然不能满足现有需求。 发明内容 [0004] 本实用新型的目的就是解决现有技术中的问题,提出一种可调整角度的太阳能光 伏固定支架的太阳能光伏系统,使得光伏发电板调整角度更广,可实现无死角调整,便于光 伏发电板更好的接收太阳光,从而提高发电效率。 [0005] 为实现上述目的,本实用新型提出了一种可调整角度的太阳能光伏固定支架的太 阳能光伏系统,包括光伏固定框体和若干铺设于所述光伏固定框体上侧的光伏发电板,所 述光伏发电板下侧设有支撑柱,所述支撑柱竖直设于所述光伏固定框体中心下侧,所述支 撑柱顶部设有与所述光伏固定框体配合的球头万向连接件,所述支撑柱上设有设备平台, 所述设备平台通过旋转连接件与所述支撑柱可旋转连接,所述设备平台上设有至少两个用 于驱动所述光伏固定框体绕所述球头万向连接件翻转的调整机构,所述调整机构包括调整 说 明 书 1/4 页 3 CN 217428054 U 3链条,所述调整链条两端分别与所述光伏固定框体前后两侧或左右两侧固定连接,所述设 备平台上设有用于固定并驱动所述调整链条前进或后退的链条驱动机构,所述旋转连接件 上设有用于驱动所述旋转连接件绕所述支撑柱旋转的旋转驱动机构。 [0006] 作为优选,所述的旋转驱动机构包括固定设于所述旋转连接件侧壁的旋转驱动电 机和设于所述旋转驱动电机电机转轴上的第一驱动齿轮,所述支撑柱外壁设有与所述第一 驱动齿轮啮合的齿盘。 [0007] 作为优选,所述的链条驱动机构包括壳体和设于所述壳体内的第二驱动齿轮,所 述第二驱动齿轮与所述调整链条啮合,所述壳体上设有用于驱动所述第二驱动齿轮旋转的 链条驱动电机。 [0008] 作为优选,所述的调整链条两端靠近与所述光伏固定框体连接处均设有拉式阻尼 缓冲器。 [0009] 作为优选,还包括与所述链条驱动机构、旋转驱动机构控制连接的控制器,所述光 伏固定框体上侧设有与所述光伏发电板同向设置的光电式太阳光跟踪传感器,所述光电式 太阳光跟踪传感器与所述控制器数据通信连接。 [0010] 作为优选,所述的球头万向连接件包括球头和球壳,所述球头上端设有与所述光 伏固定框体固定连接的球杆,所述球壳固定设于所述支撑柱顶部,所述球壳内设有与所述 球头适配的球型腔。 [0011] 作为优选,所述的光伏固定框体与所述球头万向连接件之间还设有水平设置的端 面轴承。 [0012] 本实用新型一种可调整角度的太阳能光伏固定支架的太阳能光伏系统的有益效 果:本实用新型光伏发电板既能够通过光伏固定框体与调整机构配合实现光伏发电板的径 向翻转调节,从而光伏发电板的角度,又能通过旋转驱动机构与支撑柱、旋转连接件的配合 驱动支撑柱轴向旋转,从而调整光伏发电板朝向,使得光伏发电板调整角度更广,可实现无 死角调整,可保证光伏电池板始终位于最佳倾斜角度,便于光伏发电板更好的接收太阳光, 提高了光伏电池板的发电效率,提高收益率,通过单根支撑柱支撑,节约成本,安装更方便, 支撑柱为一体式,提高强度,避免弯折,适应各种季节、各种角度的太阳光,支架结构简单, 降低用料、降低重量。 [0013] 本实用新型的特征及优点将通过实施例结合附图进行详细说明。 附图说明 [0014] 图1是本实用新型一种可调整角度的太阳能光伏固定支架的太阳能光伏系统的主 视结构示意图。 [0015] 图2是本实用新型一种可调整角度的太阳能光伏固定支架的太阳能光伏系统的侧 视结构示意图。 [0016] 图3是本实用新型一种可调整角度的太阳能光伏固定支架的太阳能光伏系统的壳 体内部结构示意图。 [0017] 图4是本实用新型一种可调整角度的太阳能光伏固定支架的太阳能光伏系统的壳 体俯视结构示意图。 [0018] 其中:1‑光伏固定框体;2‑光伏发电板;3‑支撑柱;4‑球头万向连接件;5‑设备平 说 明 书 2/4 页 4 CN 217428054 U 4台;6‑旋转连接件;7‑调整链条;8‑链条驱动机构;9‑旋转驱动机构;10‑光电式太阳光跟踪 传感器;11‑端面轴承;41‑球头;42‑球壳;43‑球杆;71‑拉式阻尼缓冲器;81‑壳体;82‑第二 驱动齿轮;83‑链条驱动电机;91‑旋转驱动电机;92‑第一驱动齿轮;93‑齿盘。 具体实施方式 [0019] 为使本实用新型的目的、技术方案和优点更加清楚明了,下面通过附图及实施例, 对本实用新型进行进一步详细说明。但是应该理解,此处所描述的具体实施例仅仅用以解 释本实用新型,并不用于限制本实用新型的范围。此外,在以下说明中,省略了对公知结构 和技术的描述,以避免不必要地混淆本实用新型的概念。 [0020] 在本实用新型的描述中,需要说明的是,当元件被称为“固定于”或“设置于”另一 个元件,它可以直接在另一个元件上或者间接在该另一个元件上。当一个元件被称为是“连 接于”另一个元件,它可以是直接连接到另一个元件或间接连接至该另一个元件上。 [0021] 在本实用新型的描述中,需要说明的是,术语“中心”、“长度”、“宽度”、“厚度”、 “上”、“下”、“前”、“后”、“左”、“右”、“竖直”、“水平”、“顶”、“底”、“内”、“外”等指示的方位或 位置关系为基于附图所示的方位或位置关系,或者是该实用新型产品使用时惯常摆放的方 位或位置关系,仅是为了便于描述本实用新型和简化描述,而不是指示或暗示所指的装置 或元件必须具有特定的方位,以特定的方位构造和操作,因此不能理解为对本实用新型的 限制。此外,术语“第一”、“第二”、“第三”等仅用于区分描述,而不能理解为指示或暗示相对 重要性。由此,限定有“第一”、“第二”的特征可以明示或者隐含地包括一个或者更多个该特 征。在本实用新型的描述中,“多个”的含义是两个或两个以上,除非另有明确具体的限定。 “若干”的含义是一个或一个以上,除非另有明确具体的限定。 [0022] 在本实用新型的描述中,还需要说明的是,除非另有明确的规定和限定,术语“设 置”、“安装”、“相连”、“连接”应做广义理解,例如,可以是固定连接,也可以是可拆卸连接, 或一体地连接;可以是机械连接,也可以是电连接;可以是直接相连,也可以通过中间媒介 间接相连,可以是两个元件内部的连通。对于本领域的普通技术人员而言,可以具体情况理 解上述术语在本实用新型中的具体含义。 [0023] 实施例一: [0024] 参阅图1、图2、图3和图4,本实用新型一种可调整角度的太阳能光伏固定支架的太 阳能光伏系统,包括光伏固定框体1和若干铺设于光伏固定框体1上侧的光伏发电板2,光伏 发电板2下侧设有支撑柱3。支撑柱3竖直设于光伏固定框体1中心下侧,支撑柱3顶部设有与 光伏固定框体1配合的球头万向连接件4。支撑柱3上设有设备平台5,设备平台5通过旋转连 接件6与支撑柱3可旋转连接,设备平台5上设有两个用于驱动光伏固定框体1绕球头万向连 接件4翻转的调整机构。调整机构包括调整链条7,调整链条7两端分别与光伏固定框体1前 后两侧固定连接,设备平台5上设有用于固定并驱动调整链条7前进或后退的链条驱动机构 8,旋转连接件6上设有用于驱动旋转连接件6绕支撑柱3旋转的旋转驱动机构9。本实施例中 通过光伏发电板2既能够通过光伏固定框体1与调整机构配合实现光伏发电板2的径向翻转 调节,从而光伏发电板2的角度,又能通过旋转驱动机构9与支撑柱3、旋转连接件6的配合驱 动支撑柱3轴向旋转,从而调整光伏发电板2朝向,使得光伏发电板2调整角度更广,可实现 无死角调整,便于光伏发电板2更好的接收太阳光,从而提高发电效率,提高收益率,通过单 说 明 书 3/4 页 5 CN 217428054 U 5根支撑柱3支撑,节约成本,安装更方便,支撑柱3为一体式,提高强度,避免弯折,使用时,链 条驱动机构8能够驱动调整链条7前进或后退,从而驱动光伏固定框体1绕球头万向连接件4 轴向径向翻转调整,旋转驱动机构9驱动旋转连接件6、设备平台5及旋转连接件6上端的链 条驱动机构8一起旋转,链条驱动机构8通过调整链条7带动光伏固定框体1绕球头万向连接 件4轴向旋转,适应各种季节、各种角度的太阳光。 [0025] 参阅图1、图2,旋转驱动机构9包括固定设于旋转连接件6侧壁的旋转驱动电机91 和设于旋转驱动电机91电机转轴上的第一驱动齿轮92,支撑柱3外壁设有与第一驱动齿轮 92啮合的齿盘93。旋转驱动电机91能够驱动旋转驱动电机91旋转,从而带动旋转连接件6和 设备平台5绕支撑柱3旋转,控制更方便,此种旋转驱动方式能够避免影响支撑柱3整体性, 避免影响支撑柱3强度。 [0026] 参阅图1、图2和图3,链条驱动机构8包括壳体81和设于壳体81内的第二驱动齿轮 82,第二驱动齿轮82与调整链条7啮合,壳体81上设有用于驱动第二驱动齿轮82旋转的链条 驱动电机83。通过调整链条7与第二驱动齿轮82配合,驱动更方便,定位更精准,控制更方 便。 [0027] 实施例二: [0028] 参阅图1、图2,在实施例一的基础上。调整链条7两端靠近与光伏固定框体1连接处 均设有拉式阻尼缓冲器71。减缓抵消大风袭来时的瞬间冲击力,保护支架和光伏发电板2, 避免损坏。 [0029] 参阅图1、图2和图4,还包括与链条驱动机构8、旋转驱动机构9控制连接的控制器, 光伏固定框体1上侧设有与光伏发电板2同向设置的光电式太阳光跟踪传感器10,光电式太 阳光跟踪传感器10与控制器数据通信连接。通过光电式太阳光跟踪传感器10追踪太阳光, 通过控制器控制链条驱动机构8、旋转驱动机构9自动调整,实现自动化运行,控制更方便。 [0030] 参阅图1、图2,球头万向连接件4包括球头41和球壳42,球头41上端设有与光伏固 定框体1固定连接的球杆43,球壳42固定设于支撑柱3顶部,球壳42内设有与球头41适配的 球型腔。球头万向连接件4增大光伏固定框体1的调整角度,实现无死角调节。 [0031] 参阅图1、图2,光伏固定框体1与球头万向连接件4之间还设有水平设置的端面轴 承11。便于与旋转驱动机构9配合实现光伏固定框体1轴向旋转,降低球头万向连接件4压 力,轴向旋转更流畅,提高使用寿命。 [0032] 本实用新型工作过程: [0033] 本实用新型一种可调整角度的太阳能光伏固定支架的太阳能光伏系统在工作过 程中,通过支撑柱3将本申请机构固定于地面,使用时,链条驱动机构8能够驱动调整链条7 前进或后退,从而驱动光伏固定框体1绕球头万向连接件4轴向径向翻转调整,旋转驱动机 构9驱动旋转连接件6、设备平台5及旋转连接件6上端的链条驱动机构8一起旋转,链条驱动 机构8通过调整链条7带动光伏固定框体1绕球头万向连接件4轴向旋转。 [0034] 上述实施例是对本实用新型的说明,不是对本实用新型的限定,任何对本实用新 型简单变换后的方案均属于本实用新型的保护范围。
热线电话
18371354043
上班时间
周一到周五
公司电话
18671317559
